Final Show Space
701
701 W 6th Ave
Denver, CO 80204
Instagram: @tdfineart
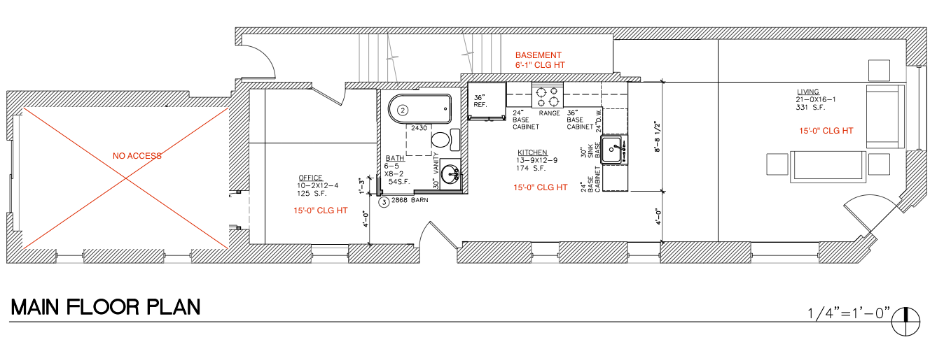
Floor Plan
Gallery floor plan (full size pdf)
Images
(click for high resolution)
701
701 W 6th Ave
Denver, CO 80204
Instagram: @tdfineart
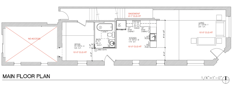
Gallery floor plan (full size pdf)
(click for high resolution)